Ниже соединительных гаек крана машиниста усл. № 328.002 на питательной трубе установлен разобщительный кран, а на трубе, идущей к тормозной магистрали, — комбинированный кран усл. №114.
Разобщительный кран 972 (см. рис. 241) служит для отсоединения питательной трубы от крана машиниста в недействующей

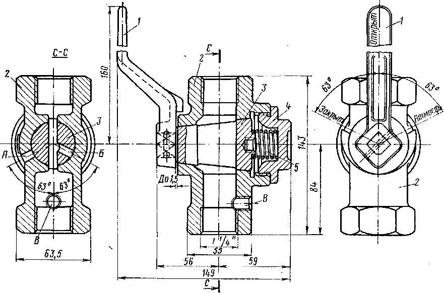
Рис. 250. Комбинированный кран № 114
кабине при одиночной тяге и в обеих кабинах второго электровоза при двойной тяге.
Комбинированный кран 966 служит для экстренного торможения, перекрывает трубопровод, как и кран двойной тяги. Этот кран имеет три положения (рис. 250). В положении ручки 1 крана вдоль трубы пробка 3 своим каналом сообщает кран машиниста с тормозной магистралью. При повороте ручки крана влево кран машиниста отсоединяется от магистрали. При повороте ручки вправо магистраль изолируется от крана машиниста и сообщается с атмосферой широким каналом через отверстие Б в пробке 3 и боковое отверстие А в корпусе 2. В последнем положении крана быстро снижается давление в тормозной магистрали. Пробка 3 прижимается к своему седлу пружиной 5, удерживаемой крышкой 4.
Конструкция разобщительного крана отличается от комбинированного крана отсутствием отверстия А в корпусе и'отверстия Б в пробке, а также положением фиксации рукоятки при закрытом положении крана.
Отверстие В в корпусе крана с резьбой 'Д" служит для присоединения трубки, идущей к манометру. На электровозах 34Е оно заглушено пробкой.
|
|