На электроподвижном составе переменного тока трансформаторы применяют для понижения напряжения контактной сети до напряжения, необходимого для тяговых двигателей, измерительных приборов, печей обогрева салона, освещения и вспомогательных машин.
Действие трансформатора основано на принципе взаимной индукции. Простейший трансформатор состоит из сердечника прямоугольной формы, собранного из листовой стали, и двух расположенных на нем электрически не связанных между собой обмоток с разным количеством витков. К зажимам обмотки / (рис. 86, а) подводится напряжение от источника электроэнергии. От зажимов обмотки // напряжение переменного тока отводится к потребителям.
При подключении первичной обмотки к источнику энергии переменного тока по виткам ее начинает протекать ток, который создает переменный магнитный поток Ф. Этот магнитный поток замыкается по сердечнику трансформатора.
Кроме потока Ф, вокруг катушек имеются еще магнитные потоки Ф) и Фг, которые не сцеплены друг с другом. Переменный магнитный поток, проходя по сердечнику и пронизывая витки обеих обмоток, индуцирует в них переменные э. д. с. е\ и е-1 (рис. 86,6).
Величина э. д. с, индуктируемой в каждом витке переменным магнитным потоком, пронизывающим обе обмотки, определяется на основании общего закона электромагнитной индукции:
* = (20)
и зависит от величины переменного магнитного потока и скорости его изменения.
Поскольку переменный поток Ф один и тот же, то в каждом витке первичной и вторичной обмоток индуктируется одинаковая по величине э. д. с.
В результате этого индуктированные в обмотках трансформатора э. д. с. прямо пропорциональны числам витков, т. е.
е,М = ^/^ = К- (21)
Величина К носит название коэффициента трансформации и представляет собой отношение э. д. с. обмотки высшего напряжения к э. д. с. обмотки низшего напряжения. Пренебрегая величиной падения напряжения в обмотках трансформатора (так как она не превышает обычно 1 —1,5%), можно считать, что отношение 1/\ первичной обмотки к напряжению (72 вторичной обмотки примерно равно отношению количества витков:
и,/и-2» (22)
Подбирая требуемое соотношение между числом витков обмоток высшего и низшего напряжений, можно легко увеличить или уменьшить напряжение переменного тока.

Рис. 86. Принципиальная схема трансформатора (а) и направления э. д. с. и токов в трансформаторе (б)
Первичная мощность, подведенная к трансформатору из сети,
р, = (У,/,со» с,,. (23) Мощность, отдаваемая трансформатором,
р., = (;./.. сое 1(2. (24)
Потери энергии в трансформаторе складываются из потерь на нагревание меди и магнитных потерь, происходящих вследствие перемагничивания стали сердечника и образования в нем вихревых токов. Эти потери незначительны, и, пренебрегая ими, можно принять, что мощности первичной и вторичной обмоток одинаковы, т. е. Я, « р2.
Считая далее приближенно, что углы сдвига фаз первичной и вторичной цепей одинаковы и что напряжения относятся между собой как соответствующие э. д. с, получаем:
и,1, ~ {/_,/,; (25)
и,/і', «с,/,:., = 1/К. (26)
Отношение токов в обмотках трансформатора обратно пропорционально отношению напряжений.
Режим работы трансформатора, при котором первичная обмотка присоединена к источнику энергии переменного тока, а вторичная обмотка разомкнута, называется холостым ходом трансформатора.. При разомкнутой вторичной обмотке через первичную обмотку протекает незначительный ток холостого хода и падение напряжения в ней составляет доли процента от II\. Этот ток создает магнитный поток в трансформаторе и обеспечивает поступление в него электрической энергии, необходимой для компенсации потерь ее в стали сердечника. Поэтому с достаточной степенью точности
^/^ІУУ^^^К, (27)
т. е. коэффициент трансформации равен отношению напряжений при холостом ходе трансформатора.
Рассмотрим режим работы трансформатора под нагрузкой, т. е. когда вторичная обмотка замкнута на внешнее сопротивление и по цепи проходит ток /2 (см. рис. 86, б). Выявим зависимость между э. д. с. и токами обеих обмоток в какой-то момент времени, когда потенциал точки а первичной цепи выше потенциала зажима б (углами сдвига фаз между токами и соответственно напряжениями пренебрегаем).
Первичная э. Д: с. в\ направлена против тока i\. Очевидно, что э. д. с. е2 вызвана тем же магнитным потоком, что и е\, поэтому направления этих э. д. с. должны быть одинаковыми. Но э. д. с. е2 вторичной обмотки является источником тока во вторичной цепи и поэтому ток h при принятых выше допущениях совпадает по направлению с э. д. с. е%.
Проходя по вторичной обмотке трансформатора, ток /2 создает намагничивающую силу (н. с.) 12W2, действующую в той же магнитной цепи сердечника трансформатора, что и н. с. первичной обмотки. Поэтому магнитный поток в сердечнике будет создаваться совместным действием магнитодвижущих сил обеих обмоток трансформатора.
По закону Ленца, индуцированный во вторичной обмотке ток направлен таким образом, что препятствует изменению магнитного потока. Следовательно, вторичный ток должен вызывать уменьшение магнитного потока, действуя навстречу н. с. первичной обмотки. Это и соответствует противоположному направлению токов i\ и i-2 в обмотках трансформатора. Уменьшение магнитного потока вызывает уменьшение индуцированной в первичной обмотке э. д. с. в\. Последняя действует против тока и, а следовательно, ее уменьшение вызывает увеличение первичного тока А, усиление н. с. первичной обмотки и результирующего магнитного потока. Ток достигает величины, при которой вновь восстанавливается равновесие между внешним напряжением и| и э. д. с. в].
Увеличение тока i2 вследствие увеличения нагрузки, т. е. уменьшения сопротивления внешней цепи, влечет за собой соответствующее увеличение первичного тока. При уменьшении нагрузки и вторичного тока первичный ток также должен уменьшаться в силу тех же электромагнитных связей, которые были рассмотрены. В этом сказывается общий принцип саморегулирования, который действителен для всех электрических машин.
В отличие от электродвигателя и других приемников электроэнергии трансформаторы нормируются не по активной (действительной), а по кажущейся мощности S, поскольку размеры, масса и конструкция трансформатора определяются в основном двумя величинами: номинальными током и напряжением.
Номинальный (допустимый по нагреву) ток определяет сечение проводников и другие размеры обмоток, а от напряжения зависит величина магнитного потока, а следовательно, и размеры сердечника трансформатора, поэтому кажущаяся мощность
5,„ = £/,„/,„. (28) измеряемая в киловольт-амперах, является основной паспортной величиной трансформатора.
Потери в трансформаторе
Р = Р, — Р, = (/|/,cos (f! — U2hC0S «>, (29)
а к. п. д. трансформатора
„ /.'. Uihnsy, = Pi (30)
1 Р, L',/,cos(f; Pl + P'
В зависимости от конструкции сердечника различают трансформаторы стержневые, у которых обмотки охватывают стержни сердечника, и броневые, у которых стержни сердечника частично охватывают (бронируют) обмотки. Стержневые трансформаторы проще по конструкции, они позволяют упростить конструкцию обмоток и их ремонт. Однако зазоры между баком и сердечником должны быть больше, чем у трансформаторов с броневым сердечником.
Трансформаторы с регулированием напряжения на вторичной стороне чаще выполняют стержневыми, а в трансформаторах с регулированием напряжения на первичной, т. е. высокой стороне, применяют броневые сердечники. Для уменьшения потерь от вихревых токов сердечники трансформаторов собирают из отдельных изолированных друг от друга листов. Поперечное сечение сердечника трансформатора электроподвижного состава обычно имеет форму ступенчатого многоугольника, вписанного в окружность, что значительно облегчает изготовление обмоток (нет изгибов изоляции под углом).
По расположению обмоток различают трансформаторы с концентрическими и дисковыми обмотками. В трансформаторах с дисковыми обмотками высшего и низшего напряжения обмотки выполняют в виде дисков, расположенных на стержне поочередно в осевом направлении. Все тяговые трансформаторы электроподвижного состава являются понижающими.
Кроме вторичной обмотки для питания тяговых двигателей через выпрямительную установку, они имеют еще обмотку низкого напряжения для питания вспомогательных электромашин и печей обогрева салонов вагонов и кабин.
Магнитопровод с обмотками являются активными узлами трансформатора, при работе которых выделяется тепло, которое необходимо отвести. В связи с ограниченными габаритами и весом трансформаторы электроподвижного состава выполняют с повышенными тепловыми нагрузками и они имеют масляное охлаждение с принудительной циркуляцией масла. Такая система более эффективна, так как позволяет иметь трансформатор минимального габарита за счет значительного увеличения теплоотдачи по сравнению с теплоотдачей при естественном охлаждении. Интенсивное охлаждение циркуляцией масла позволяет доводить плотность тока в обмотках трансформатора до 4,5—5,5 А/мм2.
Для трансформаторов применяют специальное трансформаторное масло, имеющее пробивное напряжение 25—30 кВ/мм, температуру вспышки не ниже


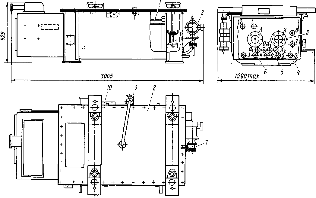
Рис. 87. Трансформатор ОЦР-1000/25:
активная часть; 2 — электронасос; 3 — ввод 25 кВ; 4 — бак; 5 — ввод обмотки собственных нужд; 6 — ввод тяговой обмотки; 7 — масло-указатель; 8 — крышка; 9 — воздухо-осушитель; 10 — сигнализирующий термометр
Рис. 88. Выемная часть трансформатора
135 °С, температуру застывания не выше —45 °С и удельный вес около 0,9 г/см при отсутствии механических примесей и воды.
Трансформаторы отечественного производства типа ОЦР-1000/25 с изоляцией обмоток, выполненной из бумаги, допускают следующие перегревы температуры сверх температуры окружающего воздуха: обмоток трансформатора 70 °С, сердечника на его поверхности 75 °С, трансформаторного масла в его верхних слоях 60 °С.
На электропоездах переменного тока ЭР9М в качестве тягового трансформатора устанавливают однофазный масляный трансформатор ОЦР-1000/25 (рис. 87). Он служит для понижения напряжения 25 кВ до величины, необходимой для работы тяговых двигателей. Трансформатор и все его оборудование предназначены для работы при температуре окружающего воздуха от —50 до 4-40 °С в условиях вибрации с частотой до 30 Гц и ускорением до \g, а также горизонтально-продольных ударов с ускорением до Зg при высоте над уровнем моря до 1200 м и относительной влажности не более 80% при температуре +20 °С.
Тяговый трансформатор подвешивают под кузовом моторного вагона на двух балках. Он состоит из прямоугольного стального бака и выемной части, укрепленной на крышке. На баке смонтированы: система циркуляции трансформаторного масла, воздухоосушитель, коробка высоковольтного ввода, изоляторы выводов обмоток трансформатора, мотор-насос трансформатора. К выемной части относятся магнитопровод 2 (рис. 88) с обмотками 3, соединительные шины 4 и крышка 1. Тяговый трансформатор имеет стержневой сердечник с надетыми на него цилиндрическими обмотками. Сердечник с обмотками расположен горизонтально и крепится с помощью специальных болтов к крышке / бака. Магнитопровод выполнен шихтованным из листов электротехнической стали толщиной 0,35 мм, покрытых тонким слоем изоляционного лака. Сечение стержней ступенчатое, многоугольное, приближающееся по форме к круглому; сечение ярма прямоугольное.
Листы стержней /, 2 (рис. 89) и каждого ярма стянуты между собой болтами, на которые надеты бакелитовые трубки 3. Под головки болтов и гаек подложены бакелитовые шайбы. На стержнях концентрично расположены обмотки.
Трансформатор имеет четыре обмотки: первичную АХ (рис. 90) на номинальное напряжение 25 кВ, тяговую обмотку 1-8 для питания тяговых двигателей
через выпрямительную установку; две обмотки собственных нужд — ачХч для питания вспомогательных цепей и ахх\ для питания цепей электрического отопления. Каждая обмотка состоит из отдельных катушек, намотанных из медной шины.
Катушки насажены на бакелитовые трубки, обладающие хорошими изоляционными свойствами, и включены в соответствии со схемой последовательно или параллельно.
Между витками катушек имеются специальные дистанционные планки для свободного доступа охлаждающего масла. На внутренних цилиндрах ближе к стержням находится первичная высоковольтная обмотка, на средних цилиндрах — вторичная тяговая обмотка. Каждая вторичная обмотка разбита на восемь последовательно соединенных секций. В зависимости от количества включенных секций напряжение на тяговой обмотке изменяется от 276 до 2208 В. На наружных цилиндрах находятся вспомогательные обмотки: на стержне X — обмотка 220 В собственных нужд, на стержне А — обмотка 600 В отопления салонов. Бакелитовые трубки на магнитопроводе укрепляют с помощью деревянных распорок.
Магнитопровод с обмотками погружен в бак с трансформаторным маслом. Бумажная изоляция шин и бакелитовых трубок, пропитанная маслом, обладает высокими изоляционными свойствами.

Рис. 90. Схема соединений обмоток трансформатора ОЦР-1000/25

Нис. 89. Схема выемной части тягового трансформатора:
/. 2 — стержни, 3 — бакелитовый цилиндр; 4 — высоковольтная обмотка, 5 — тяговая обмотка; 6 — вспомогательная обмотка, 7 - каналы
Трансформаторное масло служит одновременно охладителем обмоток и магнитопровода. Концы всех обмоток трансформатора выведены через фарфоровые изоляторы, размещенные на торцовой стенке бака в отдельной камере со съемной крышкой.
Охлаждение трансформатора осуществляется принудительной циркуляцией масла через секции охладителя. Циркуляцию масла осуществляет электронасос 2ТТ-16/10. Охлаждение масла производят продувкой через секции охладителя воздуха в количестве 4000 м3/ч мотор-вентилятором, насаженным на вал расщепителя фаз.
Постоянно циркулирующее масло поддерживает в баке необходимую температуру, которая на входе в охладитель не должна превышать 50 °С. У трансформаторов ОЦР-1000/25 отсутствует расширительный бачок, поэтому масло в баке не доливают до крышки. Во избежание всплесков масла и обнажения обмоток в баке на небольшом расстоянии от крышки укреплен специальный успокоитель — металлический лист с отверстиями.
Уровень масла контролируется маслоуказате-лем, установленным на баке. Для предохранения масла от увлажнения отверстие в крышке трансформатора соединяют с атмосферой через специальный воздухоосушитель.
Воздухоосушитель представляет собой наполненный силикагелем цилиндр, в нижней части которого находится масляный фильтр-затвор 4
(рис. 91), предусмотренный для защиты адсорбента от увлажнения и загрязнения засасываемым воздухом. В верхней части установлен патрон со смотровым отверстием, заполненный индикаторным силикагелем, изменяющим по мере увлажнения окраску с голубой на розовую. Воздухоосушитель заполнен силикагелем марки КСМ, пропитанным раствором хлористого кальция. Индикаторный силикагель пропитан дополнительно раствором хлористого кобальта. При ревизии проверяют цвет индикаторного силикагеля. Силикагель розового цвета высушивают или заменяют.
Сушку адсорбента следует производить прокаливанием при температуре 300—400 °С в течение нескольких часов в зависимости от увлажненности адсорбента. Температура при сушке индикаторного силикагеля должна быть в пределах 115—120 °С.
Расположенный в верхней части патрон заполняют индикаторным силикагелем и устанавливают стекло 3 в смотровом окне. Затем засыпают в цилиндр силикагель с таким расчетом, чтобы до крышки оставалось свободное пространство 15—20 мм, после чего производят дальнейшую сборку и присоединяют су-шитель к питающей трубе. Для приведения масляного затвора в рабочее состояние следует через патрубок залить сухое трансформаторное масло до пробки 5 контроля уровня.

Рис. 91. Воздухоосушитель:
/ — фланец маслопровода; 2 — корпус; 3 — стекло; 4 — фильтр-затвор, 5 — пробка
Основные технические данные трансформатора ОЦР-1000/25:
Номинальная мощность сетевой обмотки 965 кВ-А
Номинальное напряжение тяговой обмотки 1744 В
Номинальный ток тяговой обмотки 350 А
Часовой ток тяговой обмотки 530 А Номинальное напряжение обмотки, предназначенное для питании
цепей отопления ц28 В
Мощность обмотки отопления Ю0 кВ-А Номинальное напряжение обмотки, предназначенное'для питания
вспомогательных цепей 220 В
Номинальная мощность обмотки вспомогательных цепей 92 кВ-А
Суммарные потери мощности в трансформаторе, не более 30 кВ-А Ток холостого хода:
при напряжении питания 25 кВ 3,5%
при напряжении питания 29 кВ 5,5% Потери холостого хода:
при напряжении питания 25 кВ, не более 3 кВт
при напряжении питания 29 кВ, не более 3,8 кВт
Габаритные размеры трансформатора 3005Х 1590X929 м
Общая масса 3122 кг
Напряжение холостого хода тяговой обмотки при напряжении 25 кВ на выводах:
Положения переключающего устройства (выводы трансформатора) ' 1-8 2-8 3-8 4-8 0-8 5-8 6-8 7-8 Напряжение холостого хода тяговой обмотки, В 2208 1932 1656 1380 1104 828 552 276
Расчетное напряжение короткого замыкания между сетевой обмоткой и обмоткой собственных нужд на 257 В составляет (5,7± 1) % £/„„„, а между первичной обмоткой и обмоткой собственных нужд на 628 В— (7,1 ± 1) % £/„<„,.

При эксплуатации трансформатора напряжение, подводимое к первичной обмотке, должно быть в пределах от 19 до 29 кВ.
Подача масла из бака в охладители на электропоездах производится электронасосом. Температура верхних слоев масла при нормальной работе не должна превышать 95 °С. Необходимо постоянно осуществлять контроль за состоянием уплотнений соединений, так как их нарушение может привести к вытеканию масла и выходу из строя трансформатора.
Контроль за уплотнением коробки вводов трансформатора производят протягиванием через уплотнение при закрытой крышке полосы лакоткани толщиной 0,1 мм и шириной 20 мм. Резиновые прокладки выполняются из специальной маслостойкой резины.
На электропоездах ЭР9Е установлен тяговый трансформатор с встроенным реактором ОДЦЭР-1600/25А (рис. 92). Технические данные этого трансформатора следующие:
Трансформатор
Номинальная мощность сетевой обмотки (ВН) 965 кВ-А
Номинальное напряжение сетевой обмотки 25 кВ
Номинальное напряжение тяговой обмотки (НН) 1744 В
Номинальный ток тяговой обмотки 350 А
Номинальное напряжение обмотки отопления (ОТ) 628 В
Номинальный ток обмотки отопления 159 А
Номинальная мощность обмотки отопления 100 кВ-А Номинальное напряжение обмотки собственных нужд (СН) на вводах:
0\—Х\ 220 В
0,-Х, 276 В Коэффициент трансформации:
ВН-НН 14,3
ВН-СН (X,—Оі) Н3.5
Суммарные потери 31 кВт Реактор
Индуктивность при токе подмагничивания 250 А 20,2 мГн
Индуктивность при токе подмагничивания 530 А 16,9 мГн
Индуктивность при переменном токе 60 А 20,2 мГн
Эффективный ток переменной составляющей 80 А
Номинальный ток 320 А
Потери в меди при номинальном выпрямленном токе 6,1 кВт
Габаритные размеры трансформатора с реактором 3290X1630X930 мм Масса:
без масла 2700 кг
с маслом 3600 кг
Устройство и работа трансформатора. Принципиальная схема трансформатора с реактором дана на рис. 93. Трансформатор ОДЦЭР-1600/25 А так же, как и трансформатор ОЦР-1000/25, имеет четыре обмотки. Обмотка реактора Р электрически не соединена с трансформатором. Принципиально трансформатор ОДЦЭР-1600/25А по конструкции не отличается от трансформатора ОЦР-1000/25.
Сглаживающий реактор состоит из семи двойных катушек по 30 витков (15 витков в одинарной катушке), намотанных двумя параллельными прово-

дами. Катушки двух стержней соединены параллельно. Сердечник стержневого типа набирается из пластин трансформаторной стали. Стяжка пластин производится стальными консолями. Обе половины магнитопровода с насаженными обмотками стягиваются между собой стальными шпильками. Реактор соединен с активной частью трансформатора и с баком с помощью болтов.
|
|